断路器/接触器/负荷开关
联系我们
VM1-24系列永磁户内高压真空断路器
VM1-24系列永磁户内高压真空断路器,系是三相交流50Hz额定电压为24kV电力系统的户内开关设备,作为电网设备、工矿企业动力设备的保护和控制单元。适用于要求在额定工作电流下的频繁操作,或多次开断短路电流的场所。
该断路器采用操动机构与断路器本体一体式设计,即可做为固定安装单元,也可配有专用推进机构,组成手车单元作用。
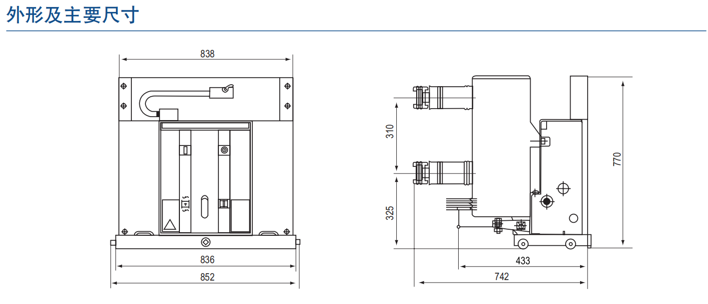
产品详情
型号含义

使用环境条件
周围空气温度:上限+40℃,下限-40℃;
海拔:≤1000m(若海拔增高,则额定绝缘水平相应提高);
地震烈度:不超过8度;
相对湿度:日平均不大于95%,月平均不大于90%;
无易燃、爆炸危险、化学腐蚀及剧烈振动的场所。
主要技术参数
项目 | 单位 | 数值 | ||
额定电压 | kV | 24 | ||
额定短时工频耐受电压(1min) | 65/79(相间,对地/断口) | |||
额定雷电冲击耐受电压(峰值) | 125/145(相间,对地/断口) | |||
额定频率 | HZ | 50 | ||
额定电流 | A | 630 1250 | 630 1250 1600 | 630 1250 1600 |
额定短路开断电流 | kA | 20/25 | 31.5 | 40 |
额定短时耐受电压 | kA | 20/25 | 31.5 | 40 |
额定短路持续时间 | S | 4 | 4 | 4 |
额定峰值耐受电流 | kA | 50/63 | 80 | 100 |
额定短路关合电流 | kA | 50/63 | 80 | 100 |
二次回路工频耐受电压(1min) | v | 200 | ||
额定单个/背对背电容组开断电流 | A | 630/400(4OkA为800/400) | ||
额定电容器组关合涌流 | kA | 12.5(频率不大于1000Hz) | ||
机械寿命 | 次 | 20000 | ||
额定电流开断次数(电寿命) | 次 | 20000 | ||
额定短路电流开断次数 | 次 | 50(40kA≤30) | ||
动、静触头允许磨损累计厚度 | mm | 3 | ||
储能时间 | s | ≤10 | ||
额定操作顺序 | 分-0.3s-合-180s-合分 | |||




